Dreispitz bei Stuttgart
Wohnüberbauung Eltingerstraße, Gerlingen
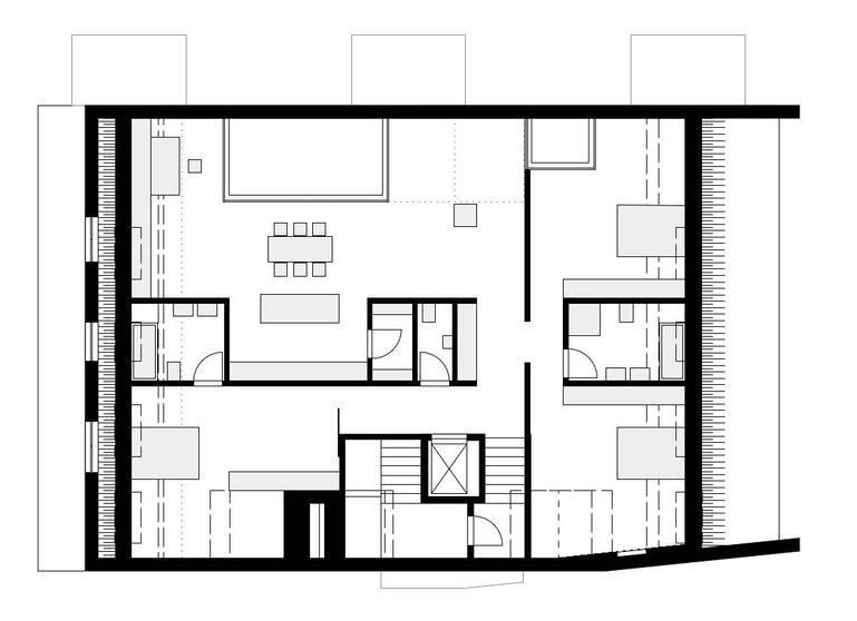
Für eine innerstädtische Nachverdichtung bei Stuttgart entstand ein zeitgemäßer Entwurf der mit dem Bild eines archetypischen Wohnhauses mit Giebeldach spielt. Das Mehrfamilienhaus, eine optische Verschmelzung von drei Gebäuden, präsentiert sich mit einer aufgelockerten Lochfassade zur Straße und öffnet sich rückwärtig zu einem idyllischen Grünbereich. Die monochrome Farbigkeit, bei gleichzeitig subtiler Differenzierung der Materialität fügen das Gebäude trotz seiner Größe in die Massstäblichkeit des gewachsenen Bestandes der Umgebung ein.
„Menschen Leben gerne in gewachsenen Strukturen, gleichzeitig ist innerstädtische Nachverdichtung ist ein zentraler Aspekt nachhaltigen Bauens. Der sensible Umgang mit dem Bestand und das behutsame Einfügen von Neubauten schafft qualitativ hochwertige Lebensräume.“



Die insgesamt dreizehn 2- bis 4-Zimmer Wohnungen sowie ein großzügiges Penthouse im Dachgeschoß mit zukunftsfähigen Größen zwischen 73qm und 177qm Wohnfläche verteilen sich auf 5 Geschosse des als Dreispänner organisierten Wohngebäudes. Den Wohnungen sind insgesamt 14 Tiefgaragenstellplätze zugeordnet.
Mit einer Gesamtfläche von 1229 qm Wohnfläche nutzt der Entwurf die zulässige bebaubare Fläche somit maximal aus und bietet qualitativen Wohnraum in einer innerstädtischen Baulücke in einer der bevorzugten Wohnlagen vor den Toren Stuttgarts.



Projektinformationen
Ort
Gerlingen, Deutschland
Projektstatus
andauernd
Team
Hadi Tandawardaja
in Kooperation mit
Grob Architektur
Verfahrens-/Projektart
Direktbeauftragung
Leistungen
Entwurf
Fläche
1229 m²
Bearbeitungszeitraum
2016