Ein harmonisches Zusammenspiel von Tradition und Moderne
Villa 1896 , Stuttgart
Der behutsame Umbau einer denkmalgeschützten Villa von 1896 verbindet die Erhaltung historischer Details wie Stuckdecken und Fenster mit zeitgemäßem Wohnkomfort. Nach einem Wasserschaden wurden Innenräume mit hochwertigen Materialien modernisiert, während historische Substanz bewahrt blieb. Highlights sind ein ausgebautes Dachgeschoss, farblich akzentuierte Sanitärräume und zusätzlicher Wohnraum im Keller – ein gelungenes Zusammenspiel von Tradition und Moderne.



Ein harmonisches Zusammenspiel von Tradition und Moderne
Der Umbau einer Villa aus dem Jahr 1896, entworfen von Albert Eisenlohr, stellt ein bemerkenswertes Beispiel für den respektvollen Umgang mit einem denkmalgeschützten Gebäude dar. Die zweigeschossige Villa, die über die Jahre hinweg gut erhalten blieb, wurde im Zuge eines Wasserschadens im Dachgeschoss vollständig überarbeitet, wobei die historische Substanz weitgehend bewahrt und durch moderne Akzente ergänzt wurde.


Wo Geschichte auf modernen Lifestyle trifft: Sanierung mit Stil
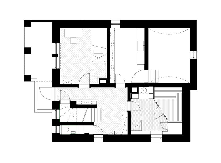
Der Bauherr entschloss sich, die markanten architektonischen Merkmale der Villa, wie die großzügigen Raumaufteilungen und die reich verzierten Stuckdecken, zu erhalten. Historische Fenster wurden restauriert, und auch die klassischen Türen, die für den Charakter des Hauses typisch sind, wurden denkmalgerecht erneuert. So bleibt der ursprüngliche Charme des Gebäudes erhalten, während die Raumkonzeption den Bedürfnissen einer siebenköpfigen Familie angepasst wird.
Die modernisierten Innenräume zeichnen sich durch eine gezielte Materialwahl aus: Eichenholz-Fischgrätparkett mit umlaufendem Fries ersetzt die alten Böden, während die Wände überwiegend in sanften, abgetönten Farben gehalten sind, die den Stuckdecken in Weiß als Kontrast gegenüberstehen. Diese klare Differenzierung zwischen den historischen Elementen und den neuen Materialien sorgt für eine ausgewogene, respektvolle Modernisierung.



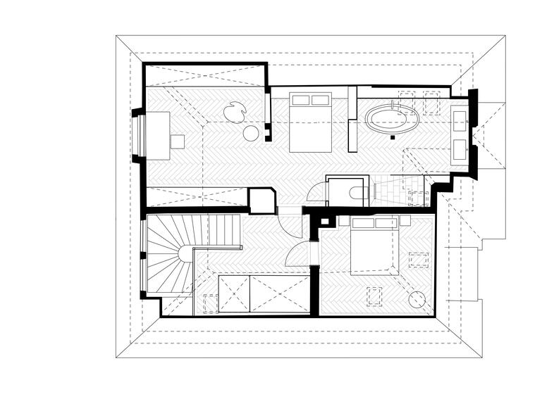
Im Dachgeschoss, das aufgrund des Wasserschadens vollständig saniert werden musste, wurden die Wände, Böden und Decken erneuert, wobei die ursprüngliche Raumhöhe und -atmosphäre beibehalten wurden. Auch das Kellergeschoss, das zuvor nicht als Wohnraum genutzt wurde, erhielt eine Umgestaltung und wurde zu zusätzlichem, modernem Wohnraum ausgebaut.
Besondere Akzente setzt der Umbau in den Sanitärräumen, die bewusst kontrastierend zum traditionellen Erscheinungsbild gestaltet wurden. Hier kommt moderne Gestaltung zum Tragen: kräftige Farben, Muschelkalkböden und zeitgemäße Einbauten harmonieren mit der historischen Architektur, ohne sie zu überlagern. Diese Räume bilden einen spannenden Gegensatz zu den ansonsten klassischen Wohnbereichen der Villa.
Durch den Umbau wurde die Villa für eine große Familie fit gemacht, ohne ihre historische Identität zu verlieren. Gleichzeitig wurde ein Augenmerk darauf gelegt, alle in den letzten zwanzig Jahren durchgeführten Sanierungen zu integrieren und nur die tatsächlich betroffenen Bereiche zu erneuern. So blieben unnötige Eingriffe vermieden und das Gebäude konnte in seiner Gesamtheit modernisiert werden.


Mit einem Baukostenrahmen von ca. 450.000 Euro netto und einer Bauzeit von rund acht Monaten zeigt dieses Projekt, wie sich historische Architektur und zeitgenössische Anforderungen miteinander verbinden lassen. Der Umbau der Villa beweist, dass eine sorgfältige Auseinandersetzung mit der Geschichte nicht im Widerspruch zu einer modernen Nutzung steht, sondern vielmehr die Grundlage für ein gelungenes Zusammenspiel von Tradition und Innovation bildet.
Durch den Umbau wurde die Villa für eine große Familie fit gemacht, ohne ihre historische Identität zu verlieren. Gleichzeitig wurde ein Augenmerk darauf gelegt, alle in den letzten zwanzig Jahren durchgeführten Sanierungen zu integrieren und nur die tatsächlich betroffenen Bereiche zu erneuern. So blieben unnötige Eingriffe vermieden und das Gebäude konnte in seiner Gesamtheit modernisiert werden.



Projektinformationen
Ort
Stuttgart, Deutschland
Projektstatus
realisiert
Team
Hadi Tandawardaja
Kristina Feige
Verfahrens-/Projektart
Direktbeauftragung
Leistungen
1 - 3
Bearbeitungszeitraum
2021